
과천 지식정보타운 상업부지에는 어떤 상가 시설들이 들어오나?
(펜타원 스퀘어. 스퀘어필드. 힐스에비뉴 과천 디센트로. 렉서. 아이플렉스. 센텀스퀘어. 어반 허브)
안녕하세요~ '개과천선'의 '톰'입니다.
지난번 지산업시설에 이어 우리 생활에 가장 큰 영향을 주는 상업부지에 들어오는 상가시설들을 좀 알아보도록 하겠습니다.
과천 지식정보타운에 입주하는 기업 정보가 궁금하신 분들은 아래 베너 클릭!!
생활하다 보면 주변에 상가시설들의 접근성이 얼마나 중요한지 아실 겁니다.
아이들의 학원들이 가까워야 픽업도 수월하고, 식당이나 마트의 접근성은 식생활에 매우 큰 영향을 주더라고요.
병원 또한 아이들을 키우는 입장에서 집 앞에 있는 게 최고! 아직 과천 내에 대형 병원이 없는 게 아쉽지만 집 앞에 병원이나 약국이 있으면 엄청 편하겠죠~?
또한, 이러한 상가 지역들이 모여있으면 중앙 광장이나 테라스 정원 등이 함께 꾸며지기 마련이기에 주말에 집 근처에서 여유로운 시간을 보낼 수도 있어서 좋을 것 같습니다.

그럼 지식정보타운 내에 들어서는 주요 상가시설들을 정리해 보도록 하죠~
이 글에서는 각 상가의 분양정보는 다루지 않고, 각 상가들이 어디에 배치되고, 어느 정도 규모에, 어떤 건물들이 지어지는가 위주로 보겠습니다.
<목 차>
1. 펜타원 스퀘어
2. 과천 스퀘어필드 (전 에비뉴드림 1~4차)
3. 힐스에비뉴 과천 디센트로 1~2차
4. 렉서
5. 아이플렉스
6. 센텀스퀘어
7. 어반 허브
8. 과천 스타필드빌리지 (미확정)
과천 지식정보타운에 입주하는 기업 정보가 궁금하신 분들은 아래 베너 클릭!!
1. 펜타원 스퀘어
- 지식 10
주거지역 S3BL 대각선이 위치하는 '펜타원 스퀘어'입니다.
펜타시티 건물에 들어서며, 주변 1,2,3단지의 수요와 펜타시티 내의 사택 임직원들이 주로 이용하게 되겠군요.
저도 주로 가까운 이곳을 이용하게 되겠네요~
2. 과천 스퀘어필드 (전 에비뉴 드림 1~4차)
- 근생 5~8
근린생활부지에 길게 들어서는 과천 스퀘어필드입니다. 이전 '에비뉴드림'이라는 사업명이 '과천 스퀘어필드'로 변경되었습니다.
과천 지정타 동편의 중심 상가지역에서 중축을 담당할 것으로 보이는 상가 지역입니다.
1~4차까지 4개 동이 길게 늘어서있는 상가/오피스 건물로 상가 지구의 street을 형성할 것으로 보여 개인적으로 기대되는 곳이기도 합니다.


배치도

BL별 업종 구성

BL별 특화계획


5-2 BL






6-1 & 2 BL






7-2 BL






8-1 & 2 BL
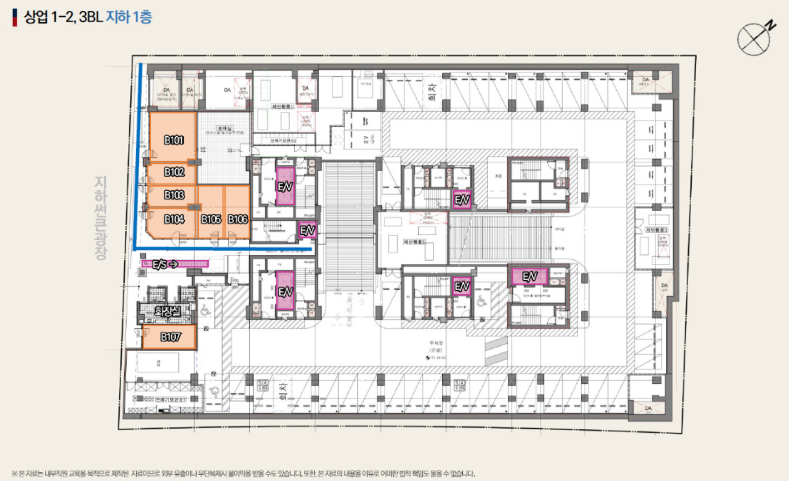
3. 힐스에비뉴 과천 디센트로 1~2차
- 상업 1-2,1-3, 3-1, 3-2
상업 1-2 & 3 BL







상업 3-1 & 2 BL






4. 렉서
- 상업 1-1
렉서는 규모는 작지만 과천정보타운역 바로 앞에 있는 알짜 부지에 들어서네요~
단지 배치도 (생활형 숙박시설)


단지 배치도 (오피스텔)
5. 아이플렉스
- 주 1
이 장소는 1~3층까지는 근생시설의 테마가 정해져 있는 곳이네요.
은행들이나 병원, 약국들이 주로 입주하게 되는군요. 자주 가게 될 것 같습니다...ㅋㅋ







1층 - 푸드/소매/근린생활시설
- 권장업종 : 편의점, 약국, 커피숍, 패스트푸드, 이동통신, 베이커리 등

2층 - 전문식당가/뷰티케어
- 권장업종 : 은행, 대형 프랜차이즈, 전문식당가(한식, 일식, 중식 등), 미용실, 피부뷰티 등

3층 - 클리닉 센터
- 권장업종 : 전문클리닉, 치과, 내과, 이비인후과, 소아과, 안과, 통증클리닉 등

8~10층 - 멀티오피스
- 권장업종 : 근생소형사무실
6. 센텀 스퀘어
- 지식 6
센텀 스퀘어는 과천정보타운역에서 멀지 않은 위치에 있는 곳으로 나름 규모가 크고 내부에 정원 등이 배치되는 것으로 보아 많은 직장인들이 이용할 것으로 보이네요.
또한, 젊은 사람들의 만남의 장소 중 한 곳이 될 가능성이 큽니다.
(저기 가면 우리 아이들을 찾을 수 있을 수도...)
7. 어반허브
- 상업 1-A-1
지식정보타운 최 북서쪽에 위치한 곳으로 저기까지 제가 갈지는 모르겠네요..
아마 주변 기업 수요를 위한 운영이 주가 될 듯합니다.
8. 스타필드 빌리지(예정)
- 상업 5
가장 기대하고 있는 곳인데, 아직 허가 등으로 인해 공식적으로는 최종 확정은 아니라고 하네요.
스타필드 빌리지라고 해서 어떤 것인가 봤더니 시티보다 더 작은 규모의 소형 쇼핑몰인 듯합니다.
작은 스타필드 빌리지여도 생겼으면 좋겠습니다. 이왕이면 지하에 트레이더스가 들어오면 최고일 텐데....
신세계 프라퍼티 중 스타필드의 사업장 규모에 따른 분류
- 스타필드 : 초대형 규모 (10만 평 이상) 복합 쇼핑몰 - 하남, 고양, 창원 등
- 스타필드 시티 : 중대형 규모 (5만 평 대) - 위례, 부천
- 스타필드 빌리지 : 중소형 규모 (1만 평 대) - 가양(예정), 과천(예정), 운정(예정)

2022년 제2회 공동(건축, 경관) 위원회 심의 결과 (과천시 제공 자료)

최근 지산, 상업지구 쪽 (과천대로 서쪽)을 가보면 정말 많은 건물들이 완공, 준공되었거나 한창 공사 중입니다.
불과 몇 달 전과의 모습과 다르게 바뀌어가고 있으며, 점점 많은 기업들이 입주하고 있죠.
다만, 아직 공사장이 많고, 대중교통이나 통학버스, 지하철역 개통 지연 등으로 많은 불편함이 있지만 향후 완성된 지식정보타운을 생각하면 흐뭇해집니다.
자료 내용 오류가 있으시면 댓글 남겨주세요~
'부동산 이야기 > 알쓸부잡' 카테고리의 다른 글
| 주택 종류 및 정의 (국민주택, 민영주택, 공공주택, 공공건설임대주택, 도시형 생활주택, 오피스텔, 공공지원 민간임대주택, 생활숙박시설) (2) | 2023.06.14 |
|---|---|
| 직계존속, 직계비속의 의미와 무주택 기간을 적용받는 세대의 의미 (2) | 2023.04.27 |
| 청약 통장의 종류와 청약통장 예치금 (주택 청약 지역 및 전용 면적별) (2) | 2023.03.24 |
| 소형주택 / 소형·저가주택의 정의 (무주택으로 인정받는 주택) (7) | 2023.03.22 |
| 가점제 점수 계산 방법 및 가점제 & 추첨제 배정 비율 (아파트 청약) (2) | 2023.03.20 |








































































댓글