'센트레빌 아스테리움 시그니처'
23년 3월 9~13일 분양 예정(서울 은평구 역촌동)
안녕하세요~ 개과천선의 톰입니다.
오늘은 2023년 2월 27일 분양 공고 및 3월 9~13일까지 청약예정인 서울시 은평구 역촌동에 '센트레빌 아스테리움 시그니처'에 대하여 알아보도록 하겠습니다.
[목차]
1. 사업 개요
2. 분양 일정
3. 평형별 분양 세대수 및 분양 예상가
4. 청약 기준 및 자격 안내
5. 주변 시세
6. 주변 환경
7. 단지 배치도 / 동호수 배치
8. 전용면적별 평면도
9. 옵션 사항 (발코니 확장, 유상옵션)
10. 단지 내 커뮤니티 시설 / 시스템
11. 견본 주택 전시관
1. 사업개요
- 사업명 : 역촌1구역주택재건축정비사업조합
- 단지명 : 센트레빌 아스테리움 시그니처
- 주소 : 서울시 은평구 역촌동 189-1번지
- 시공사 : 동부건설
- 세대수 : 총 752세대 (일반분양 454세대)
- 층수 : 지하 3층 ~ 최고 20층 (8개 동)
- 주택형 : 59㎡ / 70㎡ / 84㎡
- 용적률 : 247%
- 건폐율 : 21%
- 입주예정일 : 2024년 11월
- 지역주택조합 일반분양
- 홈페이지 바로가기
분양 일정
- 모집 공고일 : 2023.02.27
- 2023.3월 청약 시작 (아파트 분양 일정)
- 3월 9일 : 특별공급
- 3월 10일 : 1순위
- 3월 13일 : 2순위
- 3월 17일 : 당첨자 발표
- 3월 28~30일 : 당첨자 정당계약
3. 평형별 분양 세대수 및 분양 예상가
평형별 분양 세대수
- 59A㎡ : 193세대 일반분양
- 59B㎡ : 8세대 일반분양
- 59C㎡ : 132세대 일반분양
- 70A㎡ : 59세대 일반분양
- 70B㎡ : 17세대 일반분양
- 84㎡ : 45세대 일반분양
공급대상
특별공급대상
분양가격
- 59㎡ : 5억4598만원 ~ 6억5027만원(확장비 및 옵션비 미포함)
- 70㎡ : 6억4142만원 ~ 7억3125만원 (확장비 및 옵션비 미포함)
- 84㎡ : 7억5077만원 ~ 8억5315만원 (확장비 및 옵션비 미포함)

중도금 납부 일정
- 계약금 : 10%
- 중도금 : 60%
- 1회차 : 23.5.24
- 2회차 : 23.8.24
- 3회차 : 23.11.24
- 4회차 : 23.12.24
- 5회차 : 24.1.24
- 6회차 : 24.2.24
- 잔금 : 30%

4. 청약 기준 및 자격 안내
1순위 청약 자격
- 대상 : 입주자모집공고일 기준 서울특별시 또는 수도권 거주, 성년자 누구나 청약가능
- 청약통장 : 청약통장 가입 후 12개월 이상, 지역/면적별 예치금 이상
- 유주택자도 세대원도 청약가능
- 과거 당첨 사실이 있어도 1순위 청약 가능 (단, 과거 2년내 가점제 당첨 사실이 있을 경우 추첨제 청약)
- 기존주택 처분 의무 없음
2순위 청약 자격
- 지역별 예치금에 상관 없이 입주자모집공고일 현재 청약통장에 가입되어 있을 시

당첨자 선정 기준
- 전용 84㎡ 이하 : 가점제 40% + 추첨제 60%
- 과거 2년이내 가점제 당첨자는 추첨제로만 청약 가능
청약 예치금액
- 서울특별시 : 300만원
- 인천광역시 : 250만원
- 경기도 : 200만원
일반공급
- 59A : 91세대
- 59B : 3세대
- 59C : 63세대
- 70A : 27세대
- 70B : 7세대
- 84 : 23세대

특별공급 (공통내용)

특별공급 (기관추천)


특별공급 (신혼부부)
- 59A : 39세대
- 59B : 2세대
- 59C : 26세대
- 70A : 23세대
- 70B : 3세대
- 84 : 9세대
▪ 대상자 : 「주택공급에 관한 규칙」제41조에 해당하는 자로서 최초 입주자모집공고일 현재 서울특별시에 거주하거나 인천광역시, 경기도 지역에 거주하고 혼인기간이 7년 이내(혼인신고일 기준, 재혼 포함)인 무주택세대구성원(신혼부부는 혼인신고일부터 입주자모집공고일 현재까지 계속 무주택자이어야 함*)으로서 「신혼부부 주택 특별공급 운용지침」에서 정하는 소득기준 또는 자산기준을 충족하는 자
* 단, 혼인기간 중 주택을 소유한 적이 있는 자는 2018.12.11. 전에 기존 소유 주택을 처분한 이후 입주자모집공고일까지 계속하여 무주택세대구성원을 유지하고, 입주자모집공고일 현재 무주택기간이 2년을 경과한 경우에 신혼부부 특별공급 특례에 따라 2순위 청약 가능
- 입주자저축에 가입하여 청약통장 가입요건을 갖춘 자(청약통장 가입기간 6개월 이상 경과, 지역별/면적별 예치금액 이상)
- 출산은 가족관계증명서 및 주민등록표등본으로 판단하며, 임신의 경우 임신진단서, 입양의 경우 입양관계증명서(양자 및 친양자의 경우 입양관계 증명서 상 입양신고일이 적용됨) 등으로 확인
- 임신의 경우 계약서류 제출 시 출산 관련 자료(출생증명서, 유산·낙태 관련 진단서, 임신 지속 시 임신진단서)를 추가로 제출해야 하며 서류 미제출, 허위 임신, 불법낙태의 경우 당첨취소 및 부적격 처리되어 향후 신청이 제한됩니다. (출산 관련자료는 공고일 현재 임신사실 확인이 가능해야 함)
- 소득기준 : 해당 세대의 월평균 소득이 전년도 도시근로자 가구원수별 월평균소득(4명 이상 세대는 가구원수별 가구당 월평균소득을 말한다) 기준의 140% 이하인 자(신혼부부 모두 소득이 있는 경우 160% 이하)

- 자산기준 : 해당 세대의 전년도 도시근로자 가구원수별 월평균 소득 기준(배우자 소득이 없는 경우 140%, 신혼부부 모두 소득이 있는 경우 160%)은 초과하나, 해당 세대의 부동산가액기준(3억 3,100만 원) 이하에 해당하는 자는 추첨제 자격으로 신청 가능
※ 부동산가액 산출기준 : 「공공주택 특별법 시행규칙」 제13조 제2항 및 「공공주택 입주자 보유 자산 관련 업무처리기준」 제4조에 따라 산출된 금액으로서 「국민건강보험법 시행령」 제42조 제1항에 따른 보험료 부과점수의 산정방법에서 정한 재산등급 29등급에 해당하는 재산금액의 상한과 하한을 산술평균한 금액


특별공급 (생애최초)
- 59A : 19세대
- 59B : 1세대
- 59C : 13세대
- 70A : 6세대
- 70B : 2세대
- 84 : 4세대
▪ 신청자격 :「주택공급에 관한 규칙」제43조에 해당하는 자로서 최초 입주자모집공고일 현재 서울특별시에 거주하거나 인천광역시, 경기도 지역에 거주하면서 생애최초(세대에 속한 모든 자가 과거 주택을 소유한 사실이 없는 경우로 한정)로 주택을 구입하는 자로서 다음의 요건을 모두 만족하는 자
- 제28조 제1항의 1순위에 해당하는 무주택 세대구성원
- 입주자모집공고일 현재 혼인 중이거나 미혼인 자녀(입양을 포함, 혼인 중이 아닌 경우에는 동일한 주민등록표등본에 올라 있는 자녀를 말함)가 있는 자 또는 1인 가구*
* (1인 가구) 입주자모집공고일 현재 혼인 중이 아니면서(사별 또는 이혼을 포함) 미혼인 자녀(혼인 중이 아닌 경우에는 동일한 주민등록표등본에 등재된 자녀)도 없는 신청자. 1인 가구는 추첨제로만 청약가능하며, 단독세대(동거인이나 형제자매 등 세대구성원에 해당하지 않는 자와 같은 세대를 구성하는 경우 포함)와 단독세대가 아닌 자로 구분하며, 단독세대는 전용면적 60㎡ 이하 주택형에 한하여 청약가능
- 입주자모집공고일 현재 근로자 또는 자영업자[과거 1년 내에 소득세(「소득세법」제19조 또는 제20조에 해당하는 소득에 대하여 납부하는 것을 말함)를 납부한 자를 포함]로서 5년 이상 소득세를 납부한 자. 단, 이 경우 해당 소득세납부의무자이나 소득공제, 세액공제, 세액감면 등으로 납부의무액이 없는 경우를 포함합니다.
- 소득기준 : 해당 세대의 월평균 소득이 전년도 도시근로자 가구원수별 월평균소득(4명 이상 세대는 가구원수별 가구당 월평균소득을 말함) 기준의 160% 이하인 자

- 자산기준 : 해당 세대의 전년도 도시근로자 가구원수별 월평균 소득 기준(160%)은 초과하나, 해당 세대의 부동산가액기준(3억 3,100만 원) 이하에 해당하는 자는 추첨제 자격으로 신청 가능
※ 부동산가액 산출기준 : 「공공주택 특별법 시행규칙」 제13조 제2항 및 「공공주택 입주자 보유 자산 관련 업무처리기준」 제4조에 따라 산출된 금액으로서 「국민건강보험법 시행령」 제42조 제1항에 따른 보험료 부과점수의 산정방법에서 정한 재산등급 29등급에 해당하는 재산금액의 상한과 하한을 산술평균한 금액
※ 배우자 분리세대의 경우에는 주민등록이 분리된 배우자 및 배우자와 동일한 세대를 이루고 있는 세대원도 주택을 소유하지 아니해야 합니다.
※ 입주자저축에 가입하여 청약통장 가입요건을 갖춘 자(최초 입주자모집공고일 현재 「주택공급에 관한 규칙」 제28조에 따른 청약 1순위 자격요건을 갖추어야 합니다.)


특별공급 (노부모부양)
- 59A : 6세대
- 59B : 0세대
- 59C : 4세대
- 70A : 2세대
- 70B : 1세대
- 84 : 1세대
▪ 신청자격 :「주택공급에 관한 규칙」제46조에 해당하는 자로서 최초 입주자모집공고일 현재 서울특별시에 거주하거나 인천광역시, 경기도 지역에 거주하면서 만 65세 이상의 직계존속(배우자의 직계존속 포함)을
※ 무주택기간은 청약신청자 및 그 배우자, 피부양자(노부모) 및 그 배우자를 기준으로 산정(「다자녀가구 및 노부모부양 주택 특별공급 운용지침」에 따라 피부양자 및 피부양자의 배우자가 주택을 소유하고 있었던 기간은 신청자의 무주택기간에서 제외)
※ 배우자 분리세대의 경우에는 주민등록이 분리된 배우자 및 배우자와 동일한 세대를 이루고 있는 세대원도 주택을 소유하지 않아야 합니다
※ 만 60세 이상의 직계존속(피부양자의 배우자 포함)이 주택을 소유한 경우 유주택자에 해당
※ 입주자저축에 가입하여 청약통장 가입요건을 갖춘 자(최초 입주자모집공고일 현재 「주택공급에 관한 규칙」 제28조에 따른 청약 1순위 자격요건을 갖추어야 합니다.)
특별공급 (다자녀가구)
- 59A : 19세대
- 59B : 1세대
- 59C : 13세대
- 70A : 6세대
- 70B : 2세대
- 84 : 4세대
▪ 대상자 :「주택공급에 관한 규칙」제40조에 해당하는 자로서 최초 입주자모집공고일 현재 서울특별시에 거주하거나 인천광역시, 경기도 지역에 거주하는 만 19세 미만의 자녀 3명(태아 포함) 이상을 둔 현재 무주택 세대구성원
- 입주자저축에 가입하여 청약통장 가입요건을 갖춘 자(청약통장 가입기간 6개월 이상 경과, 지역별/면적별 예치금액 이상)
- 과거에 주택을 소유하였더라도 입주자모집공고일 현재 무주택세대구성원이면 신청이 가능합니다.
- 입주자모집공고일 현재 3명 이상의 자녀 모두 민법상 미성년자(만 19세 미만)이어야 함. 3명 이상의 자녀 중 전부 또는 일부가 주민등록표등본상 세대주와 다른 지역에 거주할 경우 가족관계증명서를 제출하여 미성년자임을 입증해야 합니다.
- 자녀수에는 태아나 입양자녀도 포함됩니다.
- 태아나 입양한 자녀를 자녀수에 포함할 경우 출산 등과 관련한 자료를 제출하거나 입주 시까지 입양이 유지되어야 합니다(「주택공급에 관한 규칙」 제40조 제3항)

청약 방법
인터넷 청약 방법


센트레빌 아스테리움 시그니처 관심고객등록을 원하시면 아래 링크 클릭클릭~!!


5. 주변 시세
우선 아래를 보시면 아시겠지만, 주변에 신축이 별로 없습니다.
그나마 옆에 있는 '센트레빌'이 최근 신축이며 2011년 입주한 단지입니다.

가격을 보면 30평대가 8~9억대를 형성하고 있습니다.
가격면에서만 보면 메리트가 있는 단지라고는 보여지지 않네요.







6. 주변 환경

풍부한 명문학군
역촌초, 덕산중, 구산중, 은평중, 예일여고, 은평고, 숭실고 등 우수한 학군

교통망
6호선 응암역, 3호선 불광역, 공항철도, GTX-A노선(예정), 경전철서부선(예정)
솔직히 지하철은 멉니다. 역세권 아파트는 아니죠..

인프라
이마트, NC백화점, 시립서북병원, 서부병원, 은평구청, 서부경찰서, 은평성모병원 등

자연환경
봉산공원, 구산근린공원, 불광천, 등 쾌적한 환경

7. 단지 배치도 / 동호수 배치도
단지 배치는 남향, 동향, 남동향, 남서향 등 동마다 다양하게 방향이 배치되어 있으며, 중심에 가로, 세로로 단지를 관통하는 길이 나 있어 도보 이동이 수월해 보입니다.



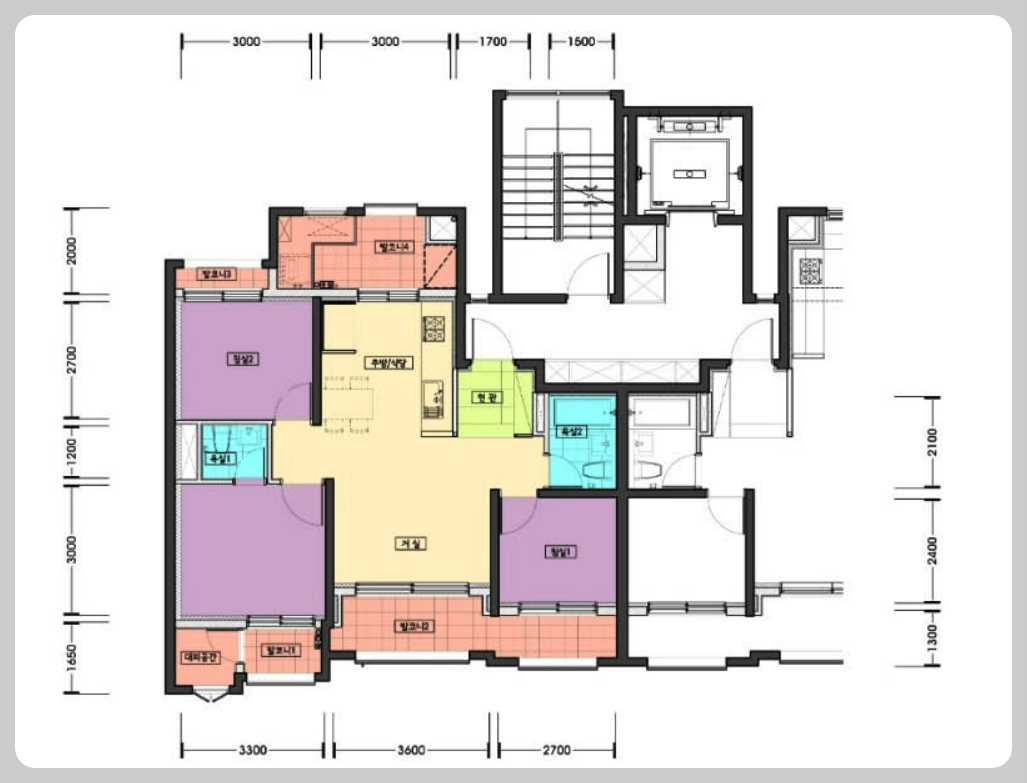
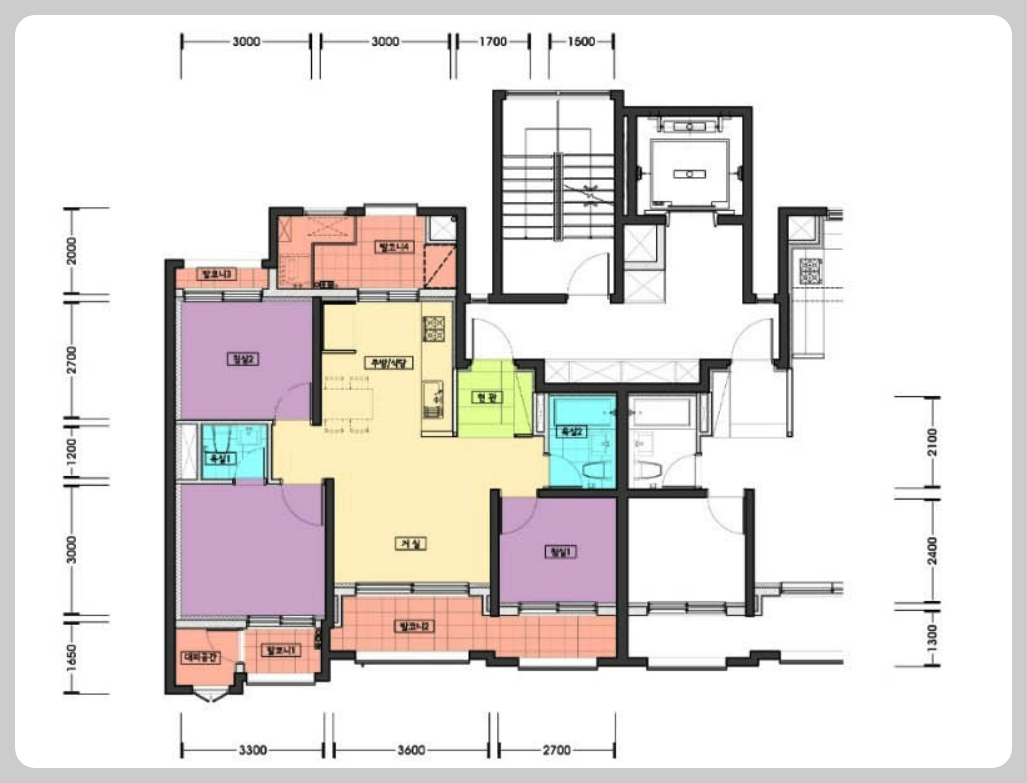
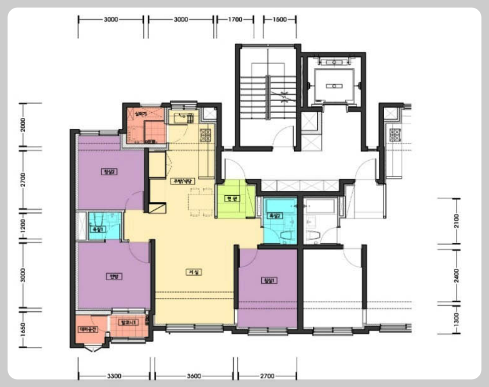
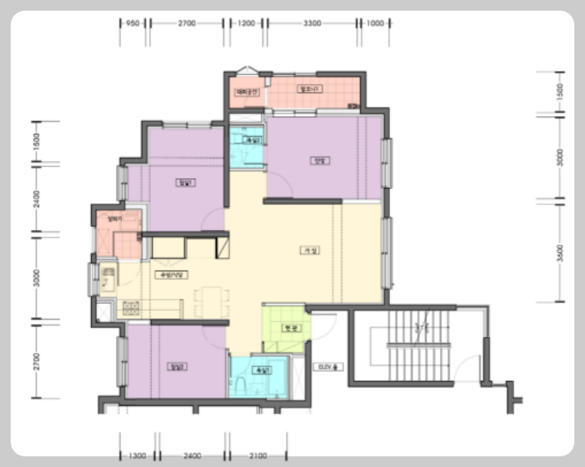
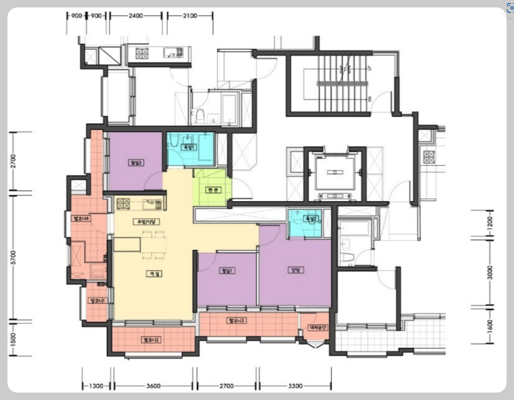
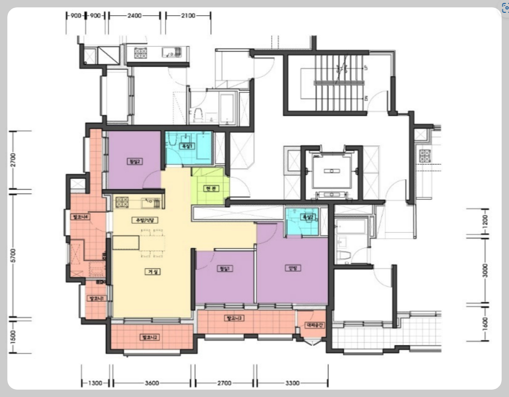
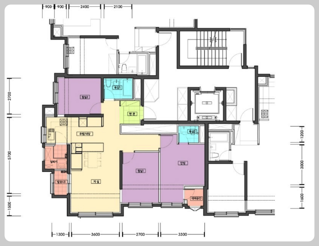
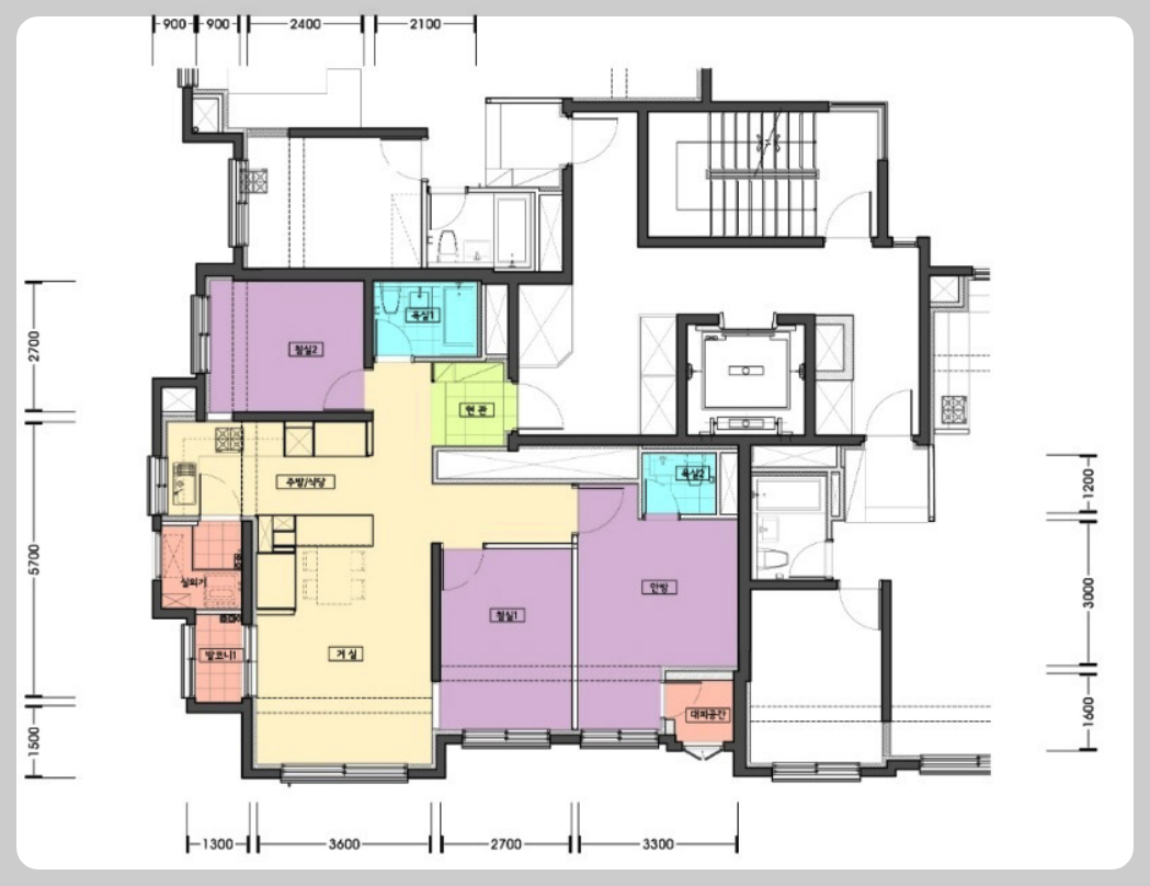
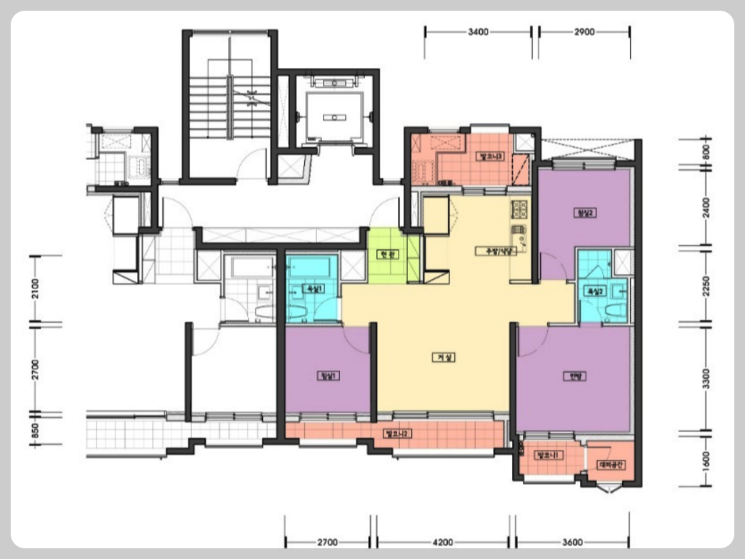
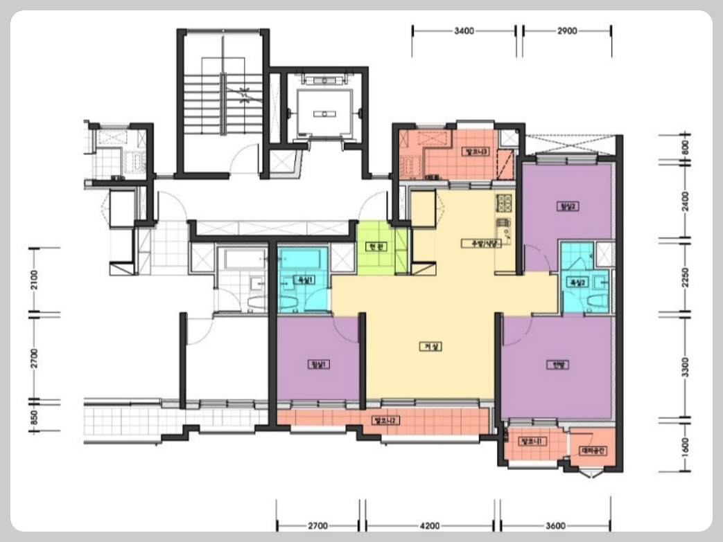
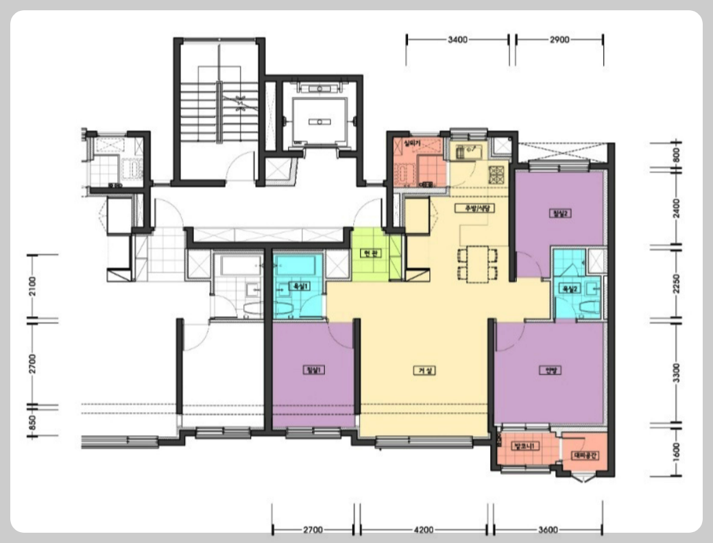
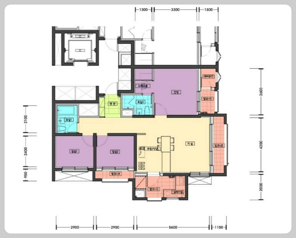
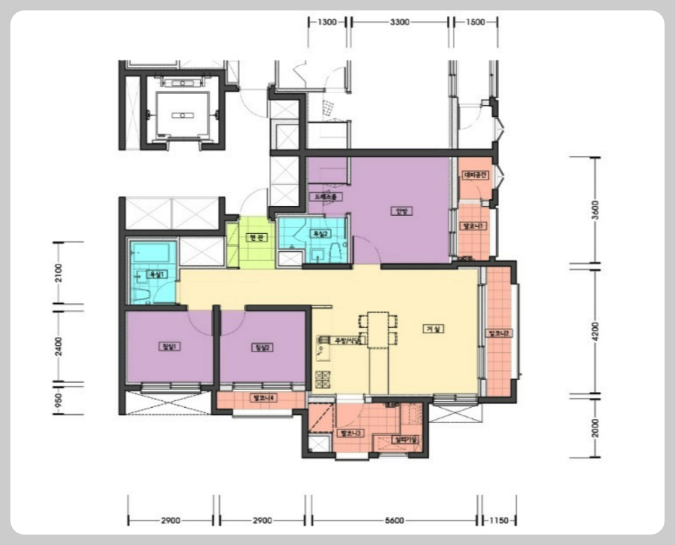
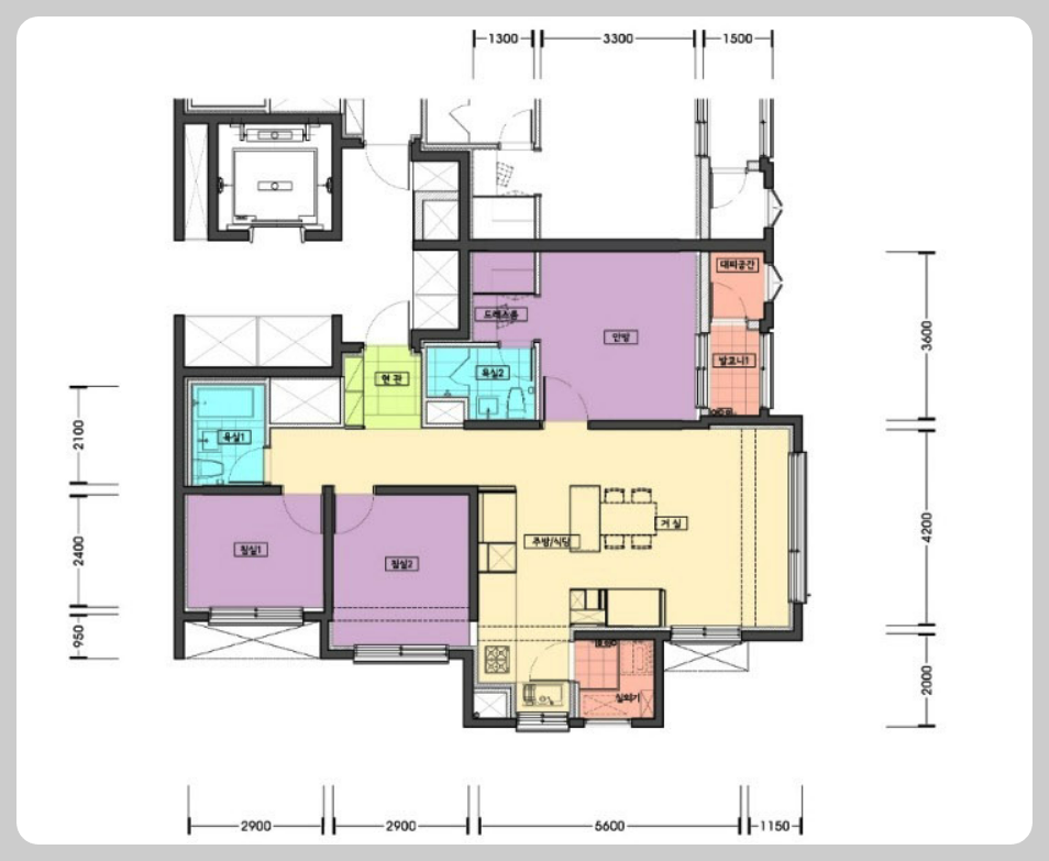
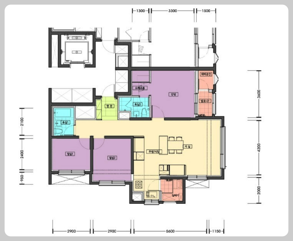
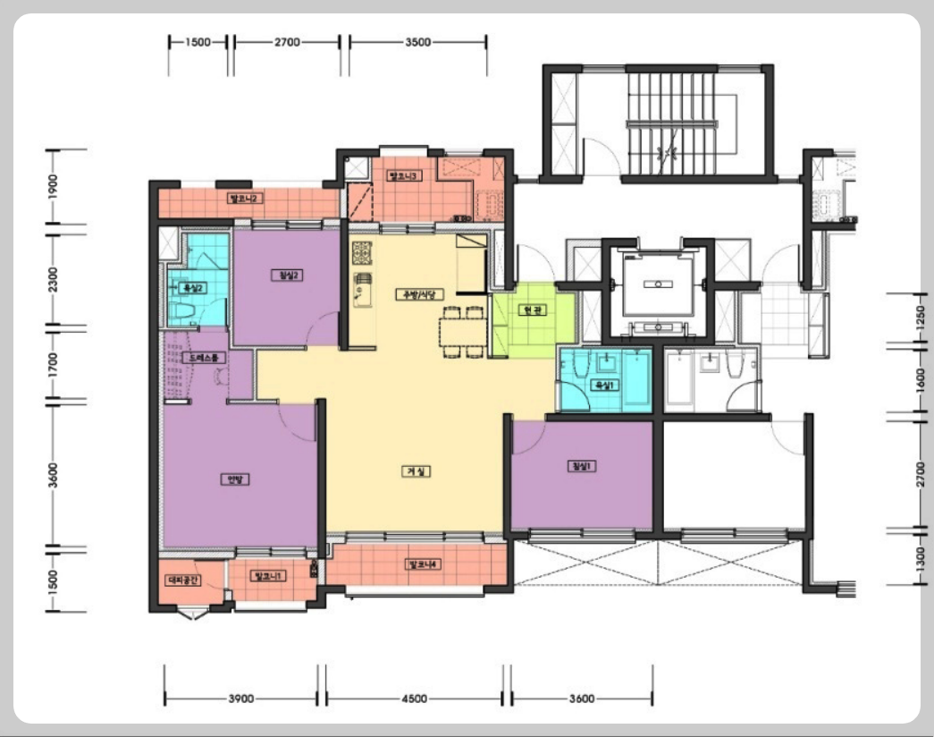
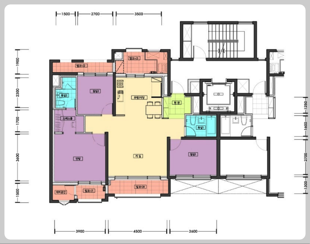
8. 전용면적별 평면도
전용 59A㎡ 평면도(기본형)

전용 59A㎡ 평면도(확장형)

전용 59B㎡ 평면도(확장형)

전용 59C㎡ 평면도(기본형)

전용 59C㎡ 평면도(확장형)

전용 70A㎡ 평면도(기본형)

전용 70A㎡ 평면도(확장형)

전용 70B㎡ 평면도(기본형)

전용 70B㎡ 평면도(확장형)

전용 84㎡ 평면도(기본형)

전용 84㎡ 평면도(확장형)

9. 옵션사항 (발코니 확장, 유상 옵션_ 단위 : 원, 부가세 포함 가격)
발코니 확장
- 59㎡ : 약 1300만 원대
- 70㎡ : 약 1500만 원대
- 84㎡ : 약 1600만 원대
현관/발코니 바닥마감 패키지 (개방형 발코니 제외)
거실/주방 바닥마감
현관중문
거실 아트월
프리미엄 주방 패키지
침실 1 붙박이장 (의류케어시스템 미설치형)
침실 1 붙박이장 (의류케어시스템 설치형)
욕실 마감 패키지
가전
침실 2,3 통합형
비데일체형 양변기
천장형 시스템에어컨 (일반형)
천장형 시스템에어컨 (프리미엄형)
10. 단지 내 커뮤니티 시설 / 시스템
Centwell Sky Lounge (106동 17, 18층)
Libray (104동 센트레애비뉴면)
Centwell (102,104동 센트레애비뉴면) / Senior House (102동 센트레애비뉴면)
Kids Village (101동 센트레애비뉴면)
피트니스 가든
센트레애비뉴
청정 시스템
스마트 / 안전 / 에너지 설감 시스템
11. 견본 주택 전시관
- 주소 : 서울특별시 은평구 증산동 223-6번지
- 오픈 : 2023년 3월 3일 오픈
본 글은 그 어떠한 대가도 없이 순수하게 정보 공유 목적으로 작성되었습니다.
'부동산 이야기 > 청약, 분양 뉴스' 카테고리의 다른 글
과천 지식정보타운 무순위 6세대 (줍줍? No!) 청약 정보 (과천 르센토 데시앙, 과천 푸르지오 라비엔오, 과천 푸르지오 벨라르테, 과천 푸르지오 오르투스_세대수, 청약 자격, 청약 방법 등) (0) | 2023.03.06 |
---|---|
'휘경자이 디센시아' 23년 4월 3일~5일 청약 (분양정보) (2) | 2023.03.03 |
'영등포자이 디그니티' 23년 3월 6~8일 청약 (서울 영등포구 청약정보) (0) | 2023.02.09 |
'힐스테이트e편한세상문정' 일반분양 청약 정보 (일정, 분양가, 입지분석) (0) | 2023.02.08 |
과천 주공 4단지 '과천센트럴자이' 23년 7~8월 분양 예정 (분양정보) (2) | 2023.02.07 |
댓글