반응형
반응형

'휘경자이 디센시아' 23년 4월 3일~5일 청약 (분양정보)
안녕하세요~ 개과천선의 톰입니다.
오늘은 2023년 3월 24일 공고가 나와 4월 3일부터 5일까지 3일간 청약예정인 서울시 동대문구 휘경동의 '휘경자이 디센시아 (휘경동 3구역 주택재개발)'에 대하여 알아보도록 하겠습니다.
[목 차]
1. 기본 정보
2. 공급 일정
3. 청약 전 체크사항
4. 청약 방법
5. 청약 시 유의사항
6. 평형별 분양 세대수
7. 조합원 분양가 및 일반 분양 예상가
8. 청약 사항
9. 발코니 확장 및 옵션
10. 이문, 휘경 뉴타운 현황
11. 주변 시세
12. 교통 여건
13. 생활 여건
14. 주변 학군
15. 단지 배치도
16. 전용 면적별 평면도
17. 견본주택
관심등록을 희망하시는 분들은 아래 클릭클릭!!
1. 기본 정보
- 위치 : 서울시 동대문구 휘경동 172번지 일대
- 건설사 : GS건설(주)
- 시행사 : 휘경 3재정비 촉진구역 주택재개발정비 사업조합 (지역 주택 조합 일반 분양)
- 세대수 : 1,806세대 (분양 700세대)
- 정비구역 면적 : 65,338m2
- 용도지역 : 제3종일반주거지역 (분양가 상한제 적용 지역)
- 규모 : 지하 3층, 지상 최고 35층, 14개 동
- 주요 전용면적 : 39m2, 49m2, 59m2, 84m2
- 건폐율 : 18.73%
- 용적률 : 299.9%
- 주차대수 : 2,159대 (세대당 1.2대)
- 입주시기 : 2025년 6월 예정
2. 공급 일정
주요 추진 경과
- 2004.06.23 : 조합설립추진워원회승인
- 2006.10.19 : 정비구역지정
- 2008.12.03 : 조합설립인가
- 2017.10.26 : 사업시행인가
- 2019.10.04 : 관리처분인가
- 2021.05.06 : 철거신고
- 2022.04.21 : 착공신고

분양 일정
- 분양공고 : 2023.3.24 (헤럴드 경제)
- 특별공급 : 2023.4.3
- 1순위 : 2023.4.4
- 2순위 : 2023.4.5
- 당첨자 발표 : 2023.4.11
- 계약 : 2023.4.23~4.25
3. 청약 전 체크 사항
4. 청약 방법

5. 청약 시 유의사항

6. 평형별 분양 세대수
- 39m2 (전용 : 39.59m2 / 공급면적 54m2)
- 19세대 분양
- 59m2 (전용 : 59.97m2 / 공급면적 82.12m2)
- 607세대 분양
- 84m2 (전용 : 84.99m2 / 공급면적 115.45m2)
- 74세대 분양
7. 조합원 분양가 및 일반 분양가
조합원 분양가
- 49m2 : 2.9억원
- 59m2 : 4.07억원
- 84m2 : 5.05억원
- 평당 1,400~1,600만원선에서 조합원 분양가 형성
예상 일반분양 평균 평당가는 약 2,900~3,000만원
전용 59m2 25평 7.25억원~7.5억원 예상전용 84m2 33평 9.57억원~9.9억원 예상발코니 확장비와 유상 옵션비 고려 안됨
분양가
- 39 : 3.55억 ~ 4.13억원
- 59A : 6.64억 ~ 7.77억원
- 59B : 6.49억 ~ 7.61억원
- 59C : 6.6억 ~ 7.73억원
- 59D : 6.55억 ~ 7.68억원
- 84A : 8.34억 ~ 9.76억원
- 84B : 8.2억 ~ 9.6억원
9. 청약 정보
특별공급 (공통)
기관추천 특별공급

다자녀 특별공급


신혼부부 특별공급



노부모부양 특별공급

생애최초 특별공급


일반공급



9. 발코니 확장 및 옵션
발코니 확장 및 샷시 시공 금액

개별 플러스옵션

마감 및 조명

주방

욕실

시스템에어컨

시스클라인


빌트인 가전

10. 이문, 휘경 뉴타운 현황
- 이문1구역 : 래미안 - 2904세대
- 이문2구역 : 구역 지정 취소
- 이문3구역 : 현대 - 4321세대 (이주-철거 완료)
- 이문4구역 : 미정 - 3702세대 (건축심의 진행중)
- 휘경1구역 : 해모로 - 299세대(입주완료)
- 휘경2구역 : SK뷰 - 900세대 (입주완료)
- 휘경3구역 : 자이 - 1792세대


11. 주변 시세
| 아파트 | 입주시기 | 평당 분양가 | 입주세대 |
| 휘경자이 디센시아 | 2025.06 | 2,900~3,000만원 예상 | 1,806 |
| 중화동 리버센SK VIEW 롯데캐슬 | 2025.11 | 3,167만원 | 1,055 |
| 장위동 장위자이 레디언스 | 2025.03 | 2,957만원 | 2,840 |
| 전농동 청량리역롯데캐슬SKY-L65 | 2023.07 | 3,750만원 | 1,425 |
| 휘경SK뷰 | 2019.06 | 3,800만원 | 900 |
휘경동 아파트 평당 평균 가격은 2,800만원정도









<휘경자이 디센시아 주변 아파트 가격 (30여평형, 22.02 초 기준)>
12. 교통 여건

- 회기역 (1호선, 경춘선, 경의중앙선) : 600m 도보 8분
- 외대앞역 (1호선) : 320m 도보 4분
13. 생활 여건
- 마트/백화점 : 하나로 마트, 롯데마트, 홈플럿, 코스트코, 이마트, 롯데백화점(청량리점)
- 병원 : 삼육서울병원, 경희대병원, 서울성심병원
- 공원 : 중랑천, 천장산, 배봉산 둘레길, 보람공원, 청랑공원
14. 주변 학군 (배정 학군 기준)
초등학교
- 서울휘경초등학교
중학교
- 성일중학교 (공립/공학)
- 청량중학교 (공립/공학)
- 대광중학교 (사립/공학)
- 경희중학교 (사립/남자)
- 경희여자중학교 (사립/여자)
- 정화여자중학교 (사립/여자)
고등학교
- 휘봉고등학교 (공립/공학)
- 경희여자고등학교 (사립/여자)
- 청량고등학교 (공립/공학)
- 휘경여자고등학교 (사립/여자)
- 해성여자고등학교 (사립/여자)
- 동국대학교사업대학부속고등학교 (사립/남자)
- 중화고등학교 (공립/공학)
- 신현고등학교 (공립/공학)
- 혜원여자고등학교 (사립/여자)
- 면목고등학교 (공립/남자)
- 원묵고등학교 (공립/공학)
- 태릉고등학교 (공립/공학)
- 송곡여자고등학교 (사립/여자)
- 송곡고등학교 (사립/남자)
우리가 이사 갔을 때 우리 자녀들이 어떤 학교에 배정받는지, 배정받는 학교가 어떤지 좀 더 상세하게 알고 싶으신가요?
그럼 아래 링크를 클릭~!!
15. 단지 배치도

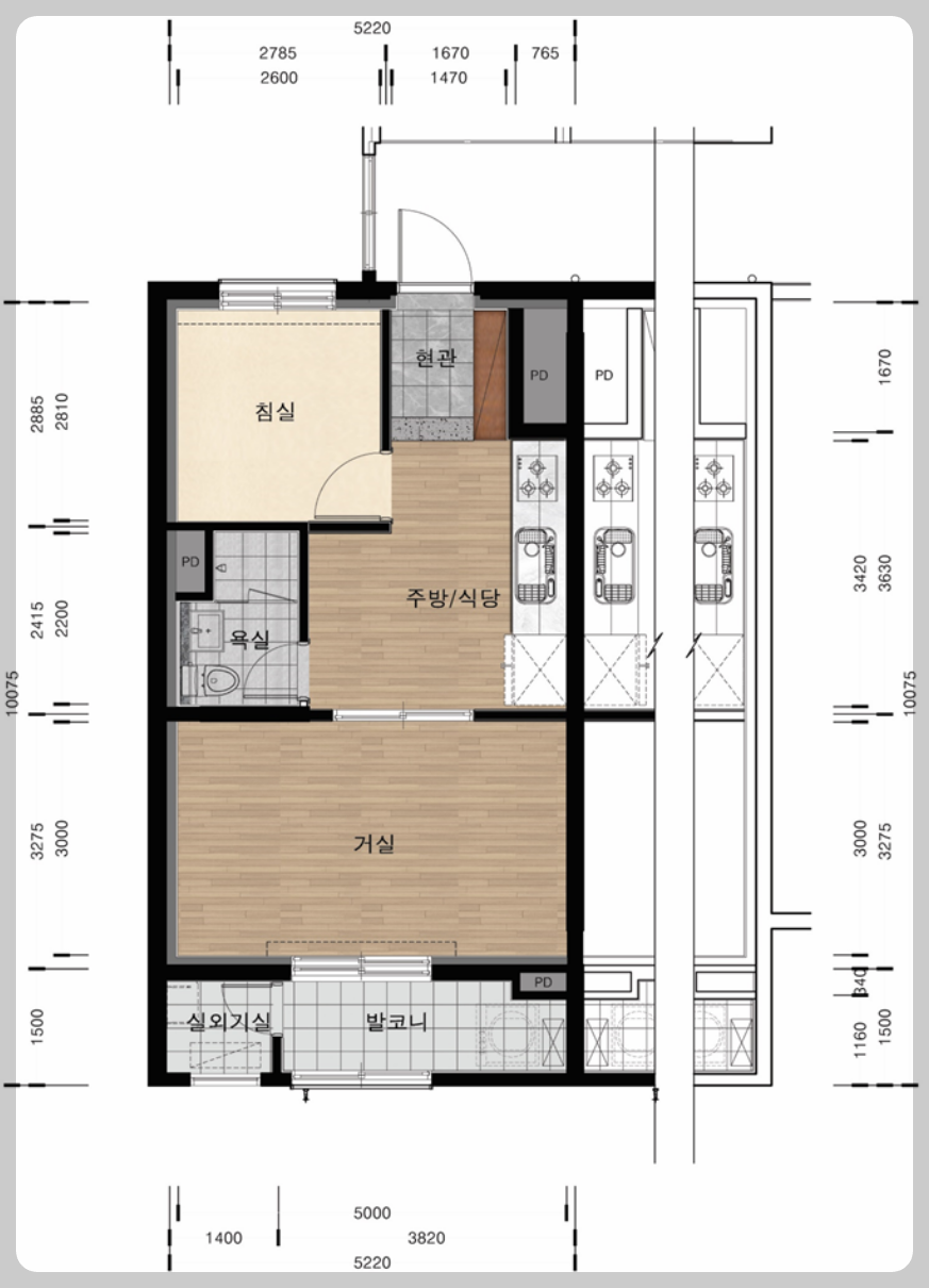
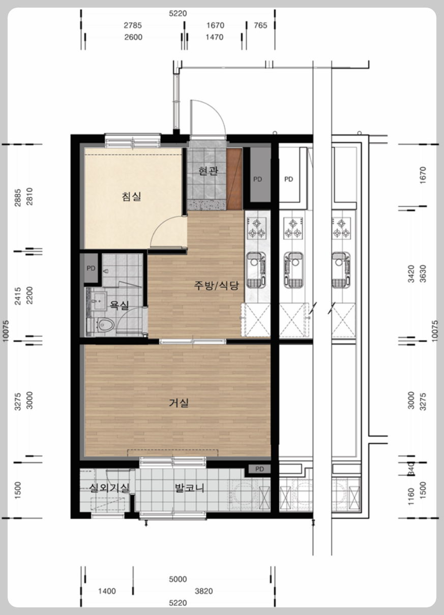
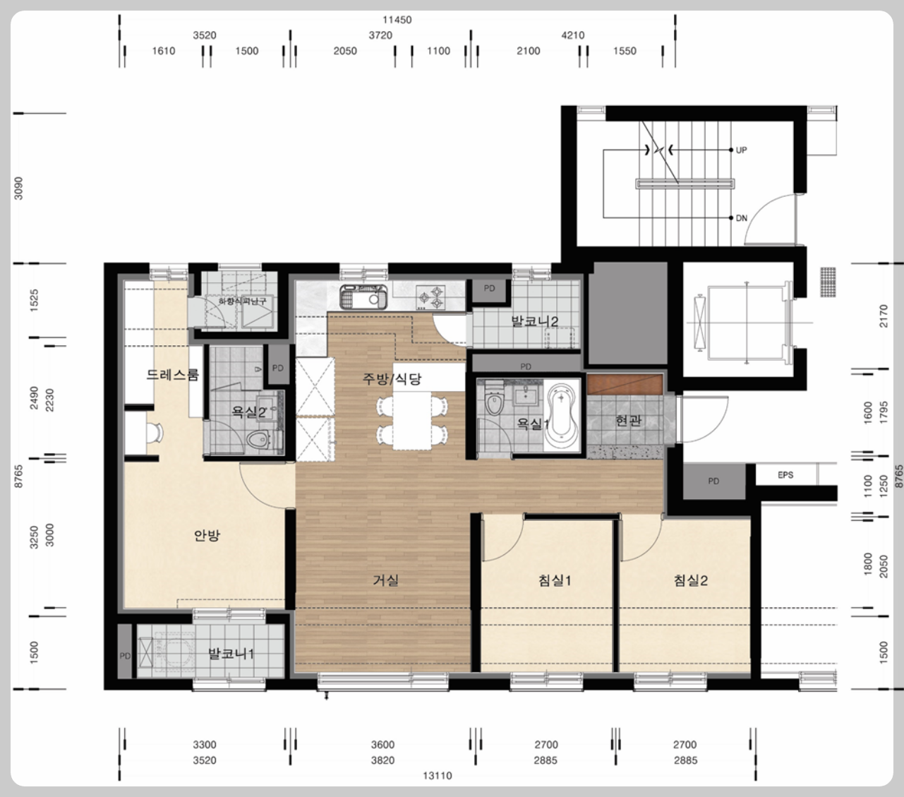
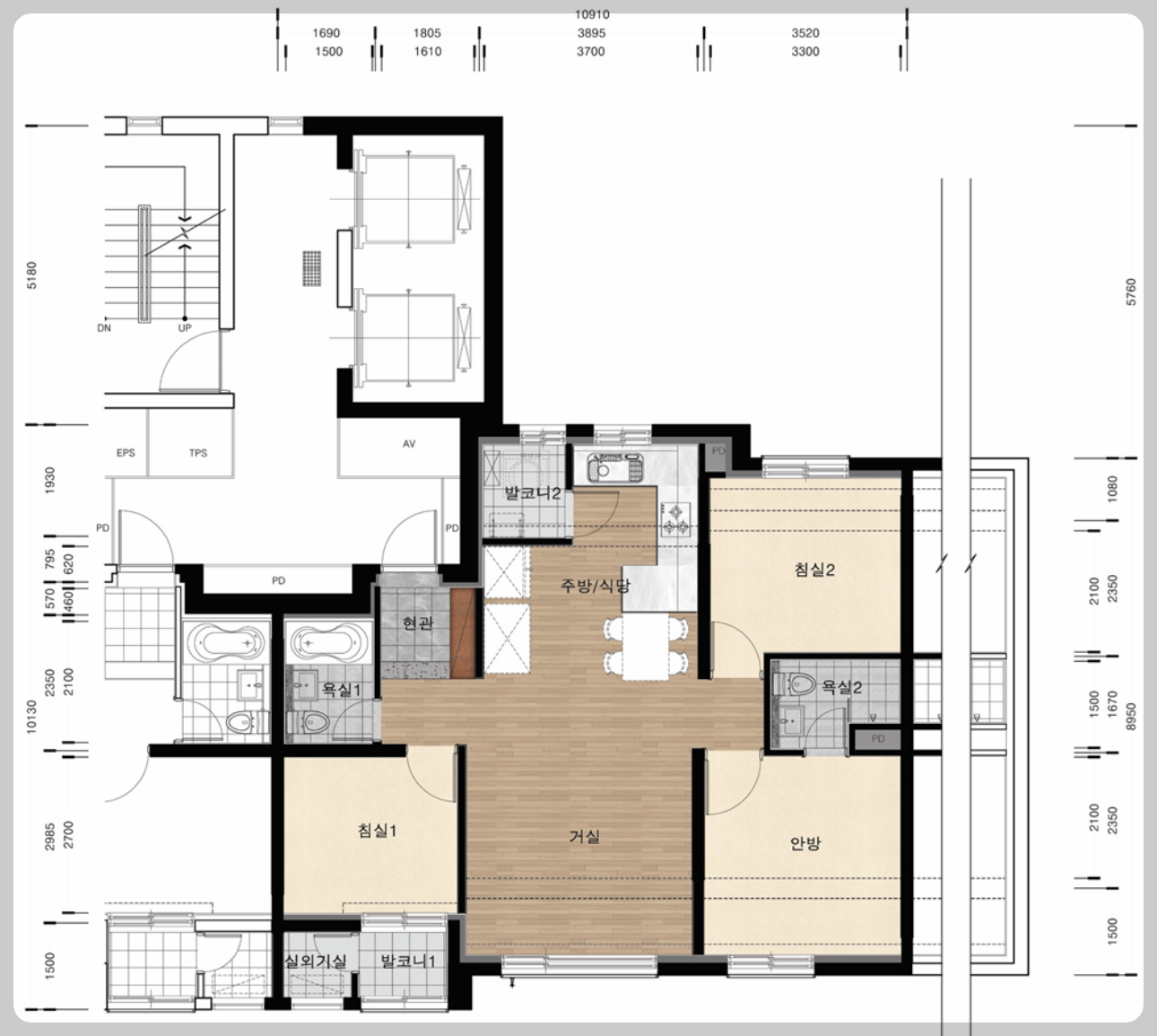
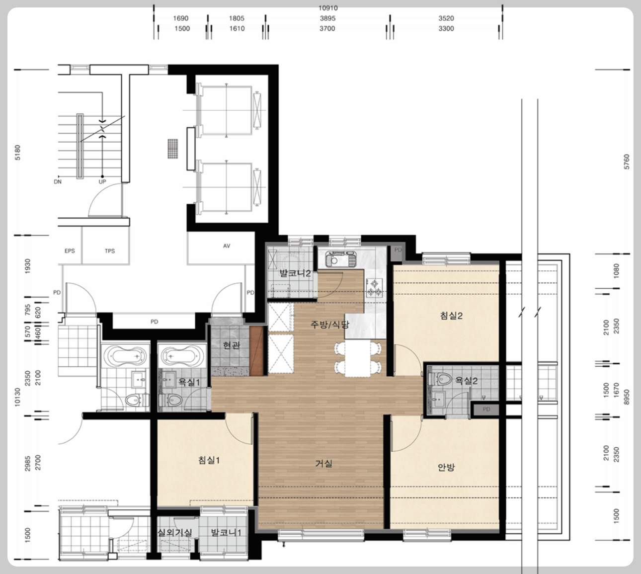
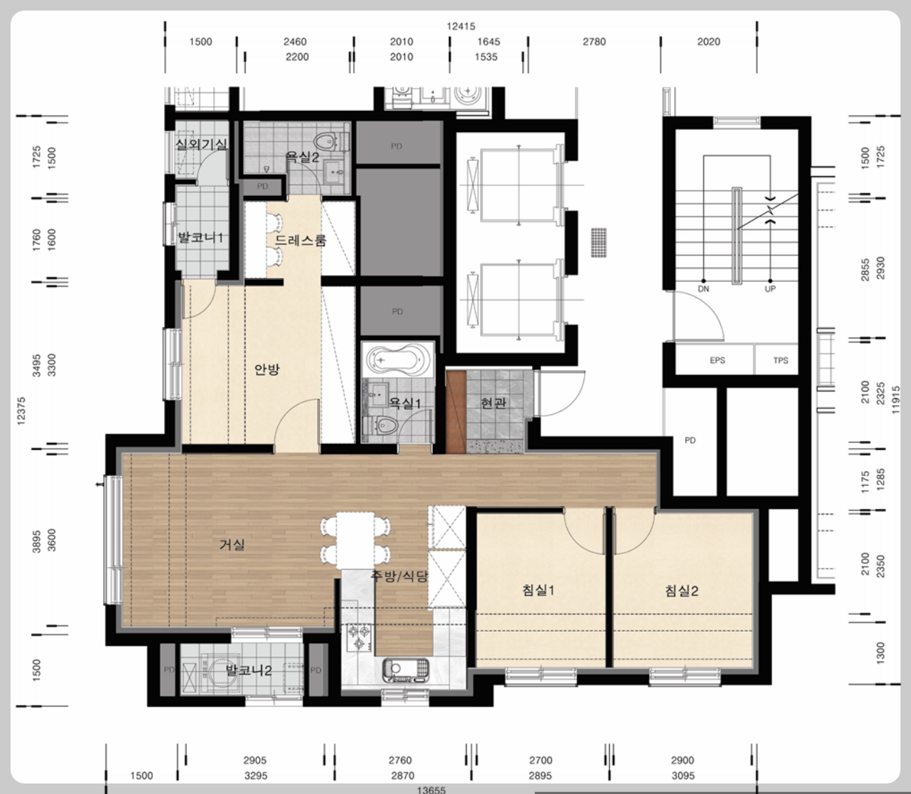
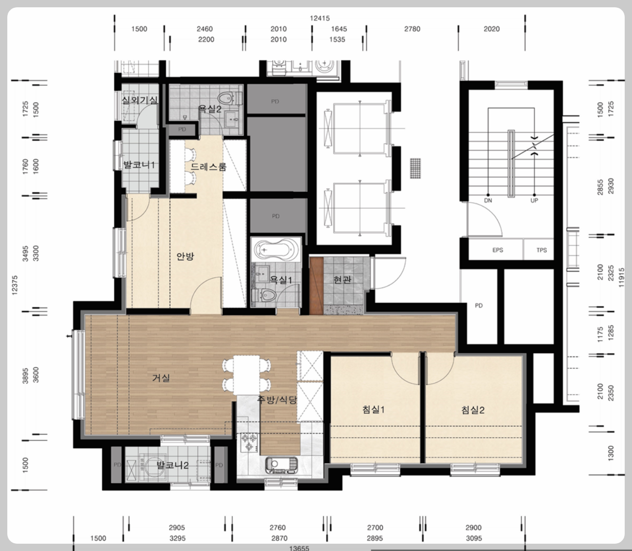
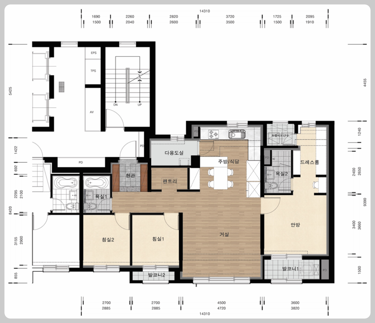
16. 전용 면적별 평면도
39형 평면도 (공급 54.00 / 전용 39.59 / 327세대)

49형 평면도 (공급 67.08 / 전용 49.50 / 98세대)

59A형 평면도 (공급 82.12 / 전용 59.97 / 269세대)

59B형 평면도 (공급 81.87 / 전용 59.98 / 519세대)

59C형 평면도 (공급 83.16 / 전용 59.99 / 56 세대)

59D형 평면도 (공급 83.16 / 전용 59.95 / 262 세대)

84A형 평면도 (공급 115.45 / 전용 84.99 / 194 세대)

84B형 평면도 (공급 116.53 / 전용 84.99 / 67 세대)

17. 견본주택
- 주소 : 서울특별시 강남구 영동대로 319, 대치동자이갤러리 3층
- 분양문의 : 1661-0703
이상으로 서울시 동대문구 휘경동에 분양 예정인 '휘경자이 디센시아'에 대하여 알아봤습니다.
본 글은 그 어떠한 대가도 없이 순수하게 정보 공유 목적으로 작성되었습니다.
반응형
'부동산 이야기 > 청약, 분양 뉴스' 카테고리의 다른 글
| 광명 센트럴 아이파크 (광명 뉴타운 4구역) 일반분양 청약 정보 (일정, 분양가, 입지분석) (3) | 2023.03.07 |
|---|---|
| 과천 지식정보타운 무순위 6세대 (줍줍? No!) 청약 정보 (과천 르센토 데시앙, 과천 푸르지오 라비엔오, 과천 푸르지오 벨라르테, 과천 푸르지오 오르투스_세대수, 청약 자격, 청약 방법 등) (0) | 2023.03.06 |
| '센트레빌 아스테리움 시그니처' 23년 3월 9~13일 분양 예정(서울 은평구 역촌동) (0) | 2023.02.27 |
| '영등포자이 디그니티' 23년 3월 6~8일 청약 (서울 영등포구 청약정보) (0) | 2023.02.09 |
| '힐스테이트e편한세상문정' 일반분양 청약 정보 (일정, 분양가, 입지분석) (0) | 2023.02.08 |



























댓글