반응형
반응형

'이문 아이파크 자이' 일반분양 청약 정보
서울 동작구 상도동 (일정, 분양가, 입지분석)
안녕하세요~ 개과천선의 톰입니다.
2023년 10월 30일~11월 01일까지 분양이 예정되어 있는 서울 동대문구 이문동 위치한 '이문 아이파크 자이' 분양 정보에 대하여 알아보도록 하겠습니다.
[목차]
1. 사업 개요
2. 분양 일정
3. 평형별 분양 세대수 및 분양 예상가
4. 청약 기준 및 자격 안내
5. 주변 시세
6. 주변 환경
7. 단지 배치도 / 동호수 배치
8. 전용면적별 평면도
9. 옵션 사항 (발코니 확장, 유상옵션)
10. 찾아오는 길
1. 사업개요
- 단지명 : 이문 아이파크 자이
- 주소 : 서울특별시 동대문구 이문동 149-8, 412-1일대
- 시공사 : HDC현대산업개발, GS건설
- 세대수 : 총 4,321세대 중 일반분양 1,467세대, 오피스텔 594실
- 층수 : 지하 6층 ~ 지상 41층 (21개 동)
- 주택형 : 20㎡, 41㎡, 59㎡, 84㎡, 99㎡, 102㎡,
- 전매제한 : 1년
- 입주 예정일 : 1,2단지 - 2025.11 예정 / 3단지 - 2026.05 예정
2. 분양 일정
- 2023.10.20 : 모집공고일
- 2023.10.30 : 특별공급
- 2023.10.31 : 1순위
- 2023.11.01 : 2순위
- 2023.11.08 : 당첨자 발표
- 2023.11.20~24 : 계약일
3. 평형별 분양 세대수 및 분양 예상가
평형별 분양 세대수
- 20㎡ : 77세대
- 41㎡ : 9세대
- 59A㎡ : 360세대
- 59B㎡ : 366세대
- 59C㎡ : 241세대
- 59D㎡ : 3세대
- 59E㎡ : 30세대
- 59F㎡ : 12세대
- 84A㎡ : 146세대
- 84B㎡ : 49세대
- 84C㎡ : 83세대
- 84D㎡ : 36세대
- 84E㎡ : 12세대
- 84F㎡ : 4세대
- 84G㎡ : 15세대
- 99A㎡ : 22세대
- 102A㎡ : 1세대
- 102P㎡ : 1세대

분양 가격
- 20㎡ : 2억 7,018.9만원 ~ 3억 851.6만원
- 41㎡ : 5억 5,223.4만원 ~ 5억 8,905.5만원
- 59㎡ : 8억 2,738.3만원 ~ 10억 892.9만원
- 84㎡ : 11억 13.1만원 ~ 14억 4,026.9만원
- 99㎡ : 15억 506.2만원 ~ 15억 7,783.5만원
- 102㎡ : 14억 3,077.5만원 ~ 16억 7,246.2만원














계약금, 중도금, 잔금 정보
- 계약금 : 10% - 계약시
- 중도금 : 70%
- 1차 중도금 15% : 2024.02.20
- 2차 중도금 15% : 2024.05.20
- 3차 중도금 10% : 2024.08.20
- 4차 중도금 10% : 2024.11.20
- 5차 중도금 10% : 2025.02.20
- 6차 중도금 10% : 2025.05.20
- 잔금 : 20% - 입주 지정일




4. 청약 기준 및 자격 안내
일반공급
■ 신청자격
입주자모집공고일 현재 서울특별시에 거주하거나 경기도, 인천광역시에 거주하는 만19세 이상인 자 또는 세대주인 미성년자(자녀양육, 형제자매부양) 중 입주자저축 순위별 자격요건을 갖춘 자(국내에서 거주하는 재외동포 재외국민 외국국적 동포 및 외국인 포함)를 대상으로 주택형별 청약순위 별로 청약 접수가 가능합니다.

■ 1순위/2순위 청약자격



■ 당첨자 선정 기준 및 방법
- 전용 85㎡ 이하 : 가점제 40% + 추첨제 60%
- 전용 85㎡ 초과 : 추첨제 100%
- 과거 2년이내 가점제 당첨자는 추첨제로만 청약 가능
■ 가점 선정기준





특별공급 (공통사항)
- 특별공급 주택을 분양받고자 하는 자는 주택공급에 관한 규칙 제 55조에 따라 한 차례에 한정하여 1세대 1주택의 기준으로 공급이 가능하고 당첨자로 선정된 경우에는 향후 특별공급에 신청할 수 없으며, 중복 신청할 경우 전부 무효 처리됨 (주택공급에 관한 규칙 제36조 제1호 및 제8호의2에 해당하는 경우는 특별공급 횟수 제한 제외)
- 최초 입주자모집공고일 현재 무주택요건, 청약자격요건 및 해당 특별공급별 신청자격을 갖추어야 함.
무주택요건

청약자격요건


특별공급 (기관추천)
■ 신청자격

■ 당첨자 선정방법

특별공급 (다자녀가구)
■ 신청자격

■ 당첨자 선정방법

■ 배점표

특별공급 (신혼부부)
■ 신청자격


■ 당첨자 선정방법

■ 경쟁이 있는 경우 당첨자 선정 방법

■ 소득초과자 자산보유기준


특별공급 (생애최초)
■ 신청자격

■ 당첨자 선정방법

■ 소득초과자 자산보유기준


특별공급 (노부모부양)
■ 신청자격


■ 당첨자 선정방법

청약 방법
인터넷 청약 방법



5. 주변 시세








6. 주변 환경

- 총 13,000여 세대 신도시급 강북지역의 최중심에 대한민국 No.1 건설사들이 짓는 총 4,321세대 명품 브랜드 대단지
- 더블 GTX-B/C(계획)로 新교통 중심이 될 청량리역과 가까운 외대앞역 및 강남과 광역권을 잇는 동부간선도로 및 내부순환도로의 쾌속교통망
- 도보권(이문초, 석관중·고, 경희중·고)학군, 한국외대, 한예종대, 경희대, 코스트코, 홈플러스, 경희의료원, 삼육서울병원 등의 생활 인프라와 천장산, 중랑천, 동부간선도로 상부 생태공원(계획) 등의 에코 인프라
- 동부간선도로 지하화(계획)로 더욱 편리해질 강남 접근성 및 바이오·의료 벤처의 중심이 될 홍릉 바이오 클러스터 특구(예정)의 놀라운 미래비전




7. 단지 배치도 / 동호수 배치도



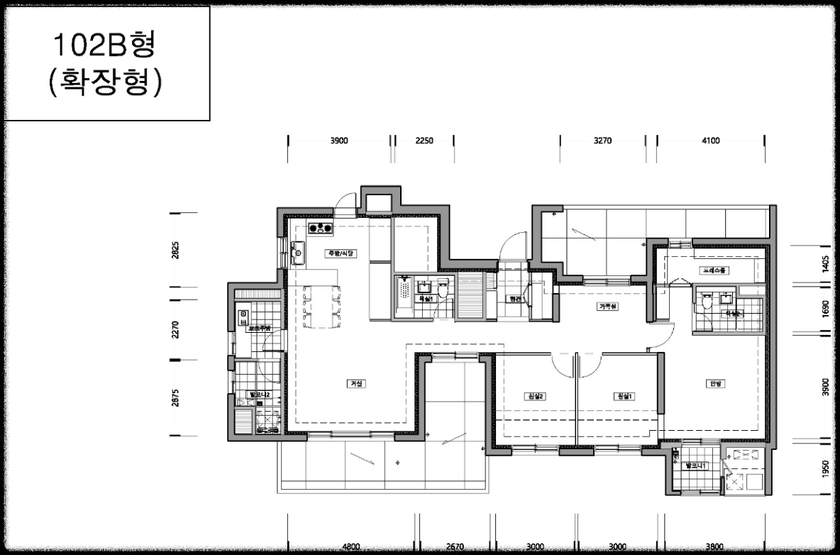
8. 전용면적별 평면도


















9. 옵션사항
발코니 확장


천정형 시스템에어컨



가전, 가구 판매가



10. 오시는 길
견본주택
- 주소 : 서울특별시 동대문구 이문동 163-77
건설현장
- 주소 : 서울특별시 동대문구 이문동 149-8, 412-1 (1600-6554)
본 글은 그 어떠한 대가도 없이 순수하게 정보 공유 목적으로 작성되었습니다.
반응형
'부동산 이야기 > 청약, 분양 뉴스' 카테고리의 다른 글
| '고촌 센트럴자이' 일반분양 청약 정보 (일정, 분양가, 입지분석) (2) | 2023.10.27 |
|---|---|
| '철산자이 브리에르' 일반분양 청약 정보 (일정, 분양가, 입지분석) (2) | 2023.10.20 |
| '힐스테이트 수원파크포레' 일반분양 청약 정보 (일정, 분양가, 입지분석) (2) | 2023.10.10 |
| '더샵 강동 센트럴시티' 일반분양 청약 정보 (일정, 분양가, 입지분석) (2) | 2023.10.06 |
| '트리우스 광명 (광명뉴타운 2구역)' 일반분양 청약 정보 (일정, 분양가, 입지분석) (2) | 2023.10.05 |














댓글