
과천 주공 4단지 '과천센트럴자이' 23년 7~8월 분양 예정 (분양정보)
안녕하세요~ 개과천선의 톰입니다.
오늘은 2023년 7~8월에 분양이 예상되는 경기도 과천시 별양동의 '과천센트럴자이'에 대하여 알아보도록 하겠습니다.
[목 차]
1. 기본 정보
2. 공급 일정
3. 평형별 분양 세대수 및 분양 예상가
4. 주변 시세
5. 주변 여건
6. 주변 학군
7. 단지 배치도
8. 전용 면적별 평면도
1. 기본 정보
- 정비구역 : 과천주공 4단지 재건축 정비구역
- 단지명 : 센트럴자이
- 위치 : 경기도 과천시 별양동 7번지 일원
- 시공사 : GS건설
- 조합원 : 863명 (지역 주택 조합 일반분양)
- 정비구역면적 : 60,679m2
- 대지면적 : 56.268m2
- 연면적 : 266,104.0m2
- 층수 : 지하 3층~지상 35층 / 11개 동
- 건폐율 : 23.1%
- 용적률 : 284%
- 세대수 : 1,437세대 (일반분양 : 289세대)
2. 공급 일정
재건축 현황
- 기본계획수립 : 2010.04.30
- 안전진단 : 2014.12.29
- 정비구역지정 : 2017.05.15
- 추진위원회승인 : 2017.07.19
- 조합설립인가 : 2018.03.12
- 사업시행인가 : 2020.09.01
- 관리처분인가 : 2022.05.27
추후 일정
- 착공 일정 : 2023. 7~8월 예상
- 일반분양 일정 : : 2023. 7~8월 예상
- 입주 예정일 : 2026. 5~6월 예상 (착공 이후 33개월)
작년 말에 이주가 완료되어야 하지만 아래와 같이 아직 상가 내 몇몇 소유주들로 인하여 이주 완료가 미뤄지는 상황입니다.

과거 과천 푸르지오써밋 (1단지 재건축)도 4단지처럼 상가 이주 지연 문제로 인해 결국 상가를 빼고 재건축을 진행했던 사례가 있죠.. 4단지도 같은 행보를 걸을지 궁금합니다.
조합은 명도소송을 진행 중이며 지난 1월 19일이 재판기일이었고, 2~3주 후면 판결이 나오기 때문에 조만간 완전 결정될 것으로 보입니다.
판결이 나면 강제집행이 들어갈 것이고, 그렇게 되면 추후 착공 및 분양 일정, 입주 예정일이 가시적으로 나올 듯합니다.
과천에 아파트 분양이 뜸한 시기에 분양이 나오면 많은 스포트라이트를 받을 것으로 예상되는 곳입니다.
3. 평형별 분양 세대수 및 분양 예상가
조합원 분양가
- 25평 : 6.5억 (평당가 - 2,600만원)
- 34평 : 8.5억 (평당가 - 2,500만원)
일반 분양 예상 분양가
- 평당 분양가 : 약 3,600만원
- 49m2 : 약 7.9억원
- 49A : 45세대
- 59m2 : 약 9억원
- 59A : 26세대
- 59B : 33세대
- 74m2 : 약 10.8억원
- 74A : 68세대
- 74B : 27세대
- 74C : 15세대
- 74D : 14세대
- 84m2 : 약 12.3억원
- 84A : 23세대
- 84B : 7세대
- 84C : 5세대
- 84D : 19세대
- 84E : 1세대
- 99m2 : 약 13억원
- 99A : 4세대
- 106m2 : 약 14억원
- 106A : 1세대
- 118m2 : 약 17억원
- 118A : 1세대

* 몇몇 분들께서 예상 분양가가 너무 낮은거 아니냐고 하십니다. 저 예상 분양가는 단지 저의 의견입니다. 작년 상반기 조합 예상 평당 분양가가 3800만원 선이었는데, 지금 분위기로 보면 그보다 낮아지지 않을까 조심스레 예상해봅니다.
둔촌 주공 분양가처럼 너무 고분양가로 가버리면 위치가 아무리 좋아도 흥행에 성공하기 쉽지 않을 것 같습니다. (뭐 결국 완판은 되겠지만...ㅋ)
4. 주변 시세
5. 주변 여건
- 과천 구도심의 가운데에 위치한 최상의 조건.
- 500m 내 : 지하철 4호선 정부과천청사역 (GTX-C 확정), 이마트, 문원초등학교, 과천고등학교, 중앙공원 및 과천 중심상가 위치


- 1km 내 : 지하철 4호선 과천역 (GTX-C 확정), 문원체육공원, 청계초, 과천고, 과천중, 과천여고, 과천외고, 과천중앙고, 고려대학병원 (예정)

- 3km 내 : 과천 지식정보타운 일원, 서울랜드, 과천과학관, 렛츠런파크(경마공원), 관문체육공원, 서울대공원, 북의왕 IC(제2경인)
6. 주변 학군 (배정학교)
초등학교
- 문원초등학교 (공립/공학)
중학교
- 과천문원중학교
- 과천중학교
고등학교
- 과천고등학교
- 과천중앙고등학교
- 과천여자고등학교
7. 단지 배치도
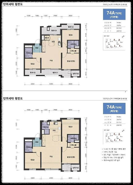
8. 전용 면적별 평면도
전용면적 49m2

전용면적 59m2


전용면적 74m2





전용면적 84m2






전용면적 99m2

전용면적 106m2

전용면적 110m2

전용면적 118m2

전용면적 126m2



이상으로 경기도 과천시 별양동에 위치한 과천주공 4단지 재건축 단지인 '과천센트럴자이'에 대하여 알아보았습니다.
현재 분양 중인 아파트가 없는 과천 지역에서 많은 분들이 목놓아 기다리는 만큼 이주도 마무리되어 분양이 빠른 시일 내에 되기를 바라며, 추가 정보가 나오면 공유드리겠습니다.
본 글은 그 어떠한 대가도 없이 순수하게 정보 공유 목적으로 작성되었습니다.
'부동산 이야기 > 청약, 분양 뉴스' 카테고리의 다른 글
| '영등포자이 디그니티' 23년 3월 6~8일 청약 (서울 영등포구 청약정보) (0) | 2023.02.09 |
|---|---|
| '힐스테이트e편한세상문정' 일반분양 청약 정보 (일정, 분양가, 입지분석) (0) | 2023.02.08 |
| 'e편한세상 동탄 파크아너스' 23년 3월 13~15 분양 (분양정보) (0) | 2023.02.07 |
| '수원성 중흥 S-클래스' 2월 분양 예정 (분양정보) (0) | 2023.01.30 |
| SK에코플랜트, '강동역 SK 리더스뷰' 2월 분양 (0) | 2023.01.29 |


















댓글