반응형
반응형

'트리우스 광명' 일반분양 청약 정보
광명 뉴타운 2 구역 (일정, 분양가, 입지분석)
안녕하세요~ 개과천선의 톰입니다.
오늘은 2023년 하반기에 분양 공고가 예상되는 경기도 광명시 광명동의 광명 뉴타운 2 구역에 '트리우스 광명'에 대하여 알아보도록 하겠습니다.

[목차]
1. 사업 개요
2. 분양 일정
3. 평형별 분양 세대수 및 분양 예상가
4. 청약 기준 및 자격 안내
5. 주변 시세
6. 주변 환경
7. 단지 배치도 / 동호수 배치
8. 전용면적별 평면도
9. 옵션 사항 (발코니 확장, 유상옵션)
10. 단지 내 커뮤니티 시설 / 시스템
11. 견본 주택 전시관
1. 사업개요
- 사업명 : 광명 제2R구역 주택재개발정비사업
- 단지명 : 트리우스 광명 (이전 베르몬트로 광명)
- 주소 : 경기도 광명시 광명1동 12-2번지 일대
- 시행사 : 광명제2R구역 주택재개발정비사업조합
- 시공사 : 대우건설, 롯데건설, 현대엔지니어링
- 설계사 : 나우동인건축사사무소
- 세대수 : 총 3,344세대 (분양 730세대)
- 층수 : 지하 3층 ~ 지상 35층 (26개 동)
- 주택형 : 36㎡, 59㎡, 84㎡, 102㎡
- 대지면적 : 109,785.9㎡
- 연면적 : 464,270.2㎡
- 용적률 : 280.08%
- 건폐율 : 17.15%
- 입주 예정일 : 2024년 하반기 예정
- 지역주택조합 일반분양


2. 분양 일정
- 입주자 모집공고 : 2023.10.06(금)
- 견본주택 개관 : 2023.10.06(금)
- 특별공급 : 2023.10.16(월)
- 1순위 공급 : 2023.10.17(화)
- 당첨자 동호수 및 예비 입주자 발표 : 2023.10.24
- 계약일 : 2023.11.06(화) ~ 11(토)
3. 평형별 분양 세대수 및 분양 예상가
평형별 분양 세대수
- 36㎡ : 483세대 중 142세대 일반분양
- 59A㎡ : 907세대 중 57대 일반분양
- 59B㎡ : 592세대 중 15세대 일반분양
- 72A㎡ : 57세대 중 0세대 일반분양
- 72B㎡ : 55세대 중 0세대 일반분양
- 84A㎡ : 487세대 중 46세대 일반분양
- 84B㎡ : 478세대 중 274세대 일반분양
- 84C㎡ : 148세대 중 118세대 일반분양
- 102A㎡ : 68세대 중 20세대 일반분양
- 102B㎡ : 69세대 중 58세대 일반분양


분양 가격
- 36 : 3억 8740만원 ~ 4억 3380만원
- 59A : 7억 9260만원 ~ 8억 9710만원
- 59B : 7억 8110만원 ~ 7억 9830만원
- 84A : 10억 4780만원 ~ 11억 8600만원
- 84B : 10억 1940만원 ~ 11억 5380만원
- 84C : 10억 1840만원 ~ 11억 5260만원
- 102A : 12억 4680만원 ~ 13억 9590만원
- 102B : 12억 620만원 ~ 13억 6530만원
조합원 분양가
- 36㎡ : 2억 3,751만원
- 59A㎡ : 3억 7,870만원
- 59B㎡ : 3억 7,098만원
- 72A㎡ : 4억 3,021만원
- 72B㎡ : 4억 2,236만원
- 84A㎡ : 4억 6,377만원
- 84B㎡ : 4억 3,998만원
- 84C㎡ : 4억 3,644만원
- 102A㎡ : 4억 9,306만원
- 102B㎡ : 4억 7,563만원



4. 청약 기준 및 자격 안내
순위별 자격요건


당첨자 선정 기준
- 전용 84㎡ 이하 : 가점제 40% + 추첨제 60%
- 전용 84㎡ 초과 : 추첨제 100%
- 과거 2년이내 가점제 당첨자는 추첨제로만 청약 가능

청약 예치금액 (전용 36~ 84 / 전용 102)
- 서울특별시 : 300만원 / 1,000만원
- 인천광역시 : 250만원 / 700만원
- 경기도 : 200만원 / 400만원



일반공급
■ 신청자격

특별공급 (공통내용)


특별공급 (기관추천)
■ 신청자격

■ 당첨자 선정방법

특별공급 (신혼부부)
■ 신청자격

■ 당첨자 선정방법




특별공급 (생애최초)
■ 신청자격


■ 당첨자 선정방법

특별공급 (노부모부양)
■ 신청자격

■ 당첨자 선정방법

특별공급 (다자녀가구)
■ 신청자격

■ 당첨자 선정방법

■ 우선순위 배점 기준표

청약 방법
인터넷 청약 방법


5. 주변 시세
2 구역 주변 아파트 단지의 시세 및 평당가 (출처 : 호갱노노_2023.10.16)

2 구역 주변 아파트 단지의 시세 (출처 : 아실_2023.10.6)

광명 뉴타운 분양 예정 단지 (출처 : 호갱노노_2023.03.07)


철산자이더헤리티지 (출처 : 아실_2023.10.16)

철산역 롯데캐슬&SKVIEW클래스티지 (출처 : 아실_2023.10.16)

쌍마한신 (출처 : 아실_2023.10.16)

광명한진타운 (출처 : 호갱노노 & 아실_2023.03.07)


6. 주변 환경

광명 뉴타운 사업 구역도

주변 학군 및 학원가 배치도 (출처 : 리치고_2023.03.07)


풍부한 명문학군



주변 병원 배치도 (출처 : 리치고_2023.03.07)

교통망
- 7호선 (광명사거리역)
- KTX
- 수색~광명 지하구간 고속철도 전용선 예정
- 1호선 (개봉역)
인프라
광명 전통시장, 이마트, 광명성애병원, 구로성심병원
자연환경
개봉공원, 개웅산공원, 현충근린공원, 목감천, 안양천

7. 단지 배치도 / 동호수 배치도


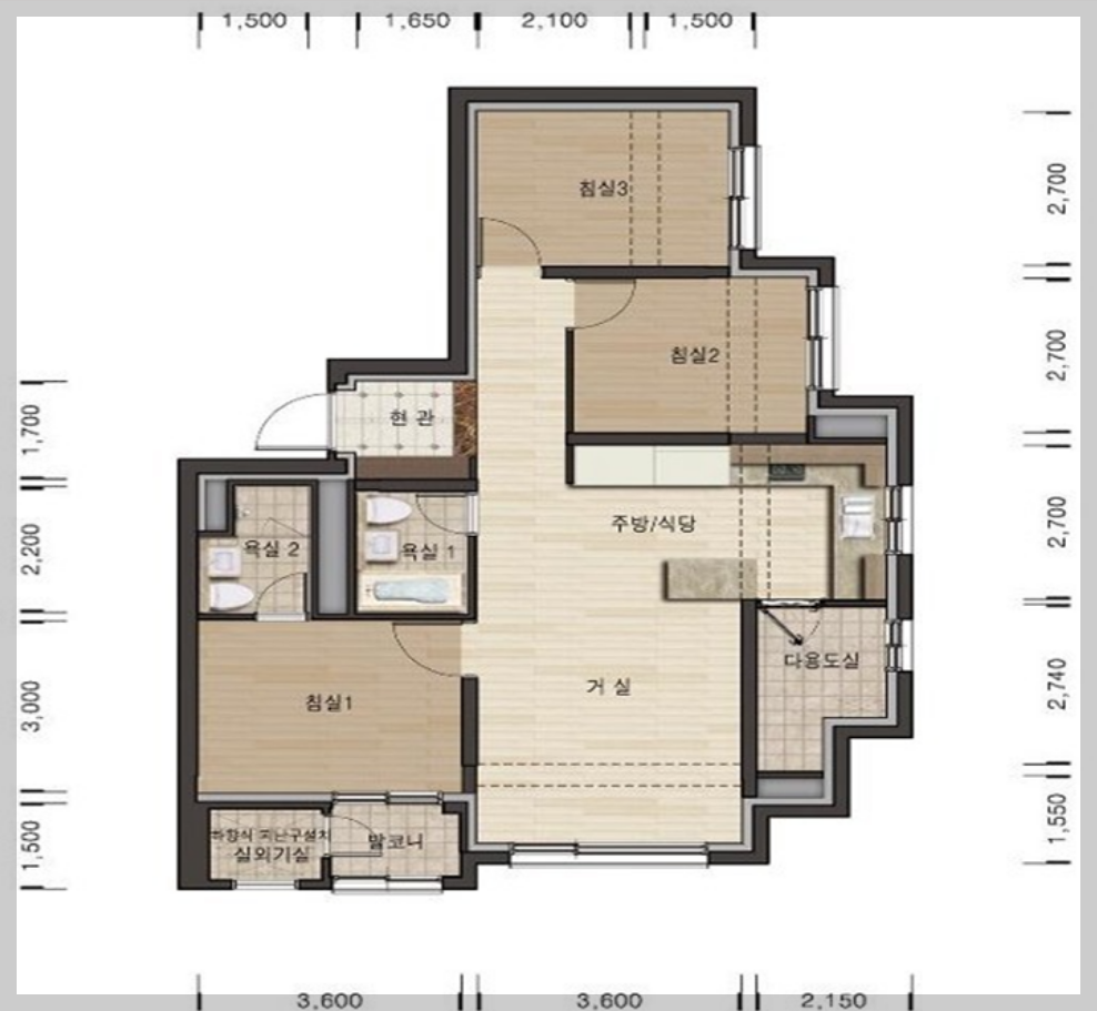
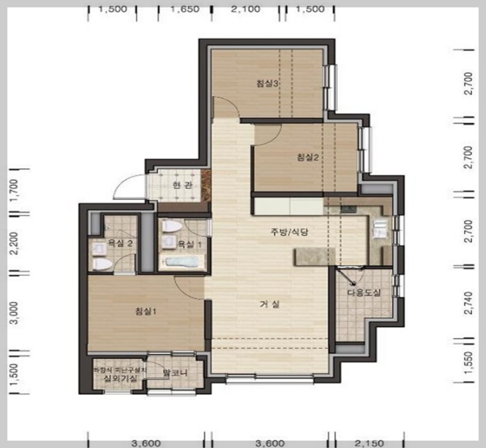
8. 전용면적별 평면도
전용면적 36㎡

전용면적 59㎡A

전용면적 59㎡B

전용면적 72㎡A

전용면적 72㎡B

전용면적 84㎡A

전용면적 84㎡B

전용면적 84㎡C

전용면적 102㎡A

전용면적 102㎡B

9. 옵션사항
평면 옵션

가전류 옵션

시스템 에어컨

10. 단지 내 커뮤니티 시설 / 시스템
- 추후 분양 공고 시 update 예정
11. 견본 주택 전시관
본 글은 그 어떠한 대가도 없이 순수하게 정보 공유 목적으로 작성되었습니다.
반응형
'부동산 이야기 > 청약, 분양 뉴스' 카테고리의 다른 글
| '힐스테이트 수원파크포레' 일반분양 청약 정보 (일정, 분양가, 입지분석) (2) | 2023.10.10 |
|---|---|
| '더샵 강동 센트럴시티' 일반분양 청약 정보 (일정, 분양가, 입지분석) (2) | 2023.10.06 |
| 롯데캐슬 이스트폴(자양1구역) 일반분양 청약 정보 (일정, 분양가, 입지분석) (2) | 2023.07.18 |
| 래미안라그란데 (이문 1구역) 일반분양 청약 정보 (일정, 분양가, 입지분석) (2) | 2023.07.07 |
| 서울 동작구 수방사 공공분양 사전청약 정보 (일정, 분양가, 입지분석) (2) | 2023.06.09 |






댓글